微信公众号
手机网站
就业/招聘小程序
咨询电话: 010-66083178(工作日8:30-17:30) 请登录 注册
联系我们
联系人:王秀秀
010 -66083178
www.qxwq.org.cn 
北京市西城区广安门
内广义街5号广益大厦
大赛作品详情

作品名称:淳色宅语
学校名称:绵阳职业技术学院
参赛队伍:四维溶月
参赛学生:廖晓菊 谢珍 苟侨谦  
指导老师:王建平  

详细说明

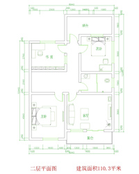
  本设计遵循“以人为本,以环境为中心”的设计理念,布局合理,功能完善,空间利用完全,适合农村的生活水平和生活习惯;采用新型的节能节地理念,从根本上解决了能源缺乏的问题;有利地达到了保护环境和净化环境的作用,是农村生态住宅的典型方式之一。

  在总结分析传统民居的基础上提出小面宽、大进深的三层住宅方案,节约用地,充分利用阁楼、楼梯等设置储物间,考虑了沼气池、太阳能集热板,平面上尽量做到门窗对位,利用空气对流。建筑外观尽量简洁明快,以反映社会主义新农村所呈现的新面貌。客厅与主卧室南向布置,各功能区间均能正常采光,且布局合理,空间尺度舒适整齐,方便居民生活。

  业主家庭为五口之家,包括业主夫妇、业主父母、一个男孩。业主夫妇均为普通职工、业主父母均已退休,有一男孩13岁。
  全家因家落农村,全家属于日出而作,日落而息;男孩平时练习跆拳道、篮球,喜欢音乐,兴趣广泛;父母喜欢看电视,看书,好安静。业主父母喜欢与邻居聊天,喜欢热闹。 

  家可以不奢华,但一定要足够温馨,足够美好。浪漫的白色家私唯美清新,淡雅的空间色彩搭配,与室内白色调融合起来,营造一种清新的自然风,简洁、大气、人性化设计。以田园风格为主,给人一种舒适、温馨的感觉。


找人才
千校人才小程序
找工作
万企岗位小程序
一键咨询
注册简历
查询
资料下载
返回顶部