微信公众号
手机网站
就业/招聘小程序
咨询电话: 010-66083178(工作日8:30-17:30) 请登录 注册
联系我们
联系人:王秀秀
010 -66083178
www.qxwq.org.cn 
北京市西城区广安门
内广义街5号广益大厦
大赛作品详情

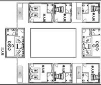
作品名称:四合宫
学校名称:湖南三一工业职业技术学院
参赛队伍:建筑动画设计室
参赛学生:张乐  
指导老师:汪盈  

详细说明
该作品通过将北京的四合院的整体空间布局,结合现代开放简约式的空间结构,再以日式的装修风格相结合的一个名宿。给予人们休闲度假环境营处造一个异域风情的娱乐氛围。
找人才
千校人才小程序
找工作
万企岗位小程序
一键咨询
注册简历
查询
资料下载
返回顶部