微信公众号
手机网站
就业/招聘小程序
咨询电话: 010-66083178(工作日8:30-17:00) 请登录 注册
联系我们
联系人:王秀秀
010 -66083178
www.qxwq.org.cn 
北京市西城区广安门
内广义街5号广益大厦
大赛作品详情

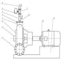
作品名称:一种新型防气蚀离心泵
学校名称:濮阳职业技术学院
参赛队伍:濮阳职业技术学院机电1队
参赛学生:杨振标 冯宝震 段坡坡  
指导老师:任保臣 宋志峰  

详细说明

开发背景淤筑施工过程中,由于输沙距离较远,管道较长,输沙过程中随着距离的变化输送压力衰减,这就需要中间加装离心式接力泵,对输送泥浆加压,提高泥浆的输送压力,加大泥浆的输送速度。但是从多年的施工实践发现,接力泵气蚀问题严重,加快了泵壳和叶轮的磨损,造成离心泵振动加剧,噪声大,并出现压力和流量脉动现象等,使其工作效率下降。

结构说明:抽沙淤筑用加压离心泵,包括蜗壳、所述蜗壳外侧开排气口,排气口连接排气装置,排气装置包括排气管,排气管上设置阀门

功能使用说明使用安全、可靠,自动控制阀口启闭,间歇式排气,有效减少蜗壳、叶片的气蚀,弱化蜗壳、叶片表面的强力水击破坏,从而防止由于气蚀原因造成的振动、压力脉动和噪声。

设计原理:离心泵在运转中,抽送水流的绝对压力降低到水的汽化压力时,水便在该处开始汽化,形成气泡,当含有大量气泡的液体随旋转的叶轮到达高压区时,高压液体致使气泡急剧地缩小以至破裂;在气泡凝结破裂的同时,液体质点以很高的速度填充空穴,在此瞬间产生很强烈的水击作用,并以很高的冲击频率打击金属表面,产生严重气蚀,破坏蜗壳、叶轮表面;加装防气蚀装置后,气泡从低压侧到高压侧后气泡破裂前,通过排气装置收集并间歇式排出,减少强力水击金属表面的发生,从而减少气蚀。

产品特色:使用安全、可靠,自动控制阀口启闭,间歇式排气,有效减少蜗壳、叶片的气蚀,弱化蜗壳、叶片表面的强力水击破坏,从而防止由于气蚀原因造成的振动、压力脉动和噪声。


扫码申请
职业领航师
千校选才官
找人才
千校人才小程序
找工作
万企岗位小程序
一键咨询
注册简历
查询
资料下载
返回顶部