微信公众号
手机网站
就业/招聘小程序
咨询电话: 010-66083178(工作日8:30-17:00) 请登录 注册
联系我们
联系人:王秀秀
010 -66083178
www.qxwq.org.cn 
北京市西城区广安门
内广义街5号广益大厦
大赛作品详情

作品名称:对接螺栓根部表面滚压强化工艺装置设计
学校名称:银川能源学院
参赛队伍:先锋队
参赛学生:李磊 岳浩然 李超  
指导老师:曹凤梅  

详细说明

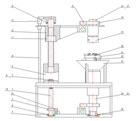
对接螺栓是制造业中常用的联结形式之一,如飞机制造、压力容器制造及建筑业等。对接螺栓在使用过程中要承受较大拉力,需进行抗拉试验。而根部 R 区属应力集中区,易在该部位发生疲劳断裂的现象,因此制造过程中要对该区域进行强化,以提高抗疲劳强度。对此,本团队利用三维设计软件 SOLIDWORKS 2016 的强大功能设计了一款对接螺栓根部 R 区滚压强化装置。

通过滚压强化加工的方法可以提高零件的表面粗糙度 2-4 级,使零件耐磨性比磨削后提升 1.5~3 倍,可以校正并且提高零件的形状误差和零件的表面粗糙度,而且滚压强化加工过程操作简便,工作效率高、洁净没有污染,并且还具有应用领域宽,滚压强化加工后的零件利用寿命长等特点,可利用在对零件的粗糙度和硬度都有特定要求的零件表面。因此,通过零件滚压表面强化加工技术可以完成对螺栓根部表面的强化,从而使得螺栓达到更高的使用要求。

按照滚压强化加工工艺要求,该装置由夹持结构、滚轮组件、施力结构、传动结构组成。

使用时,取出与试件相配合的夹头和滚轮并安装,用夹头夹住试件并安装在主轴上,调节试件根部与滚轮贴合后,压紧套不动,螺母轴转动使夹具体向下移动,并且带动三个滚轮组件进行向心运动,使得滑轮表面挤压螺栓根部 R 区,从而完成强化过程。

此装置利用三爪自动定心的原理,使被加工螺栓轴线和夹头的轴线同轴,同时夹具体上采用可调滚轮,针对不同的螺栓直径和R值对螺栓施力,施力值的大小由电脑控制电机输出功率控制,以实现滚压过程“定量定性”。同时,降低了对操作人员技能要求,提高了加工效率,并使螺栓受力均匀,提高加工质量。



扫码申请
职业领航师
千校选才官
找人才
千校人才小程序
找工作
万企岗位小程序
一键咨询
注册简历
查询
资料下载
返回顶部