微信公众号
手机网站
就业/招聘小程序
咨询电话: 010-66083178(工作日8:30-17:30) 请登录 注册
联系我们
联系人:王秀秀
010 -66083178
www.qxwq.org.cn 
北京市西城区广安门
内广义街5号广益大厦
大赛作品详情

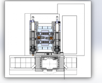
作品名称:“大型轴承座” 高效加工设备
学校名称:营口理工学院
参赛队伍:STONE
参赛学生:张磊 张旭 余智帅  
指导老师:张文武 韩亮  

详细说明

大型轴承座是轧机上必备不可缺少的零件,该零件有几个位置的孔系加工,传统的工艺是先钻削,在镗削,其中一直径110mm的孔径需要耗时2-3天的时间,同时由于自身体积大,需要占用大型镗削加工设备,效率低,加工成本高。本项目针对此问题进行的“大型轴承座”高效加工设备研制。

“大型轴承座”高效加工设备主要完成对轧机轴承座各圆柱形深孔的粗、精加工。加工方式为套料钻削与BTA实心钻削相结合。可用于对各种箱体类零件上的圆柱孔的钻镗粗、精加工等。

该机床主要由回转工作台、立柱、左右横梁、左右钻杆箱、钻杆支架、钻杆导向中心架、受油器、数显装置、拖链装置、导轨防护装置、冷却(排屑)系统、润滑系统、液压装置、电气系统等主要部件组成。

“大型轴承座”高效加工设备的加工效率极高,直径110mm的孔径传统的需要耗时2-3天的时间将缩短为2-3小时完成

找人才
千校人才小程序
找工作
万企岗位小程序
一键咨询
注册简历
查询
资料下载
返回顶部