微信公众号
手机网站
就业/招聘小程序
咨询电话: 010-66083178(工作日8:30-17:30) 请登录 注册
联系我们
联系人:王秀秀
010 -66083178
www.qxwq.org.cn 
北京市西城区广安门
内广义街5号广益大厦
大赛作品详情

作品名称:一种智能象棋分拣器
学校名称:山东华宇工学院
参赛队伍:智能分拣象棋
参赛学生:王文凯 董志全 田雨  
指导老师:方玉娟 马晓曙  

详细说明

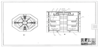
一种智能分拣器

①该设备是一种智能分拣象棋棋子设备,可进行生产—分拣—包装一条龙出厂。

②设备开始工作后,将棋子放到送料平台上,输送工作开始,在棋子每次运行到位后,传送带会自动停止,机械手会在液压设备的控制下抓取棋子。送料机构在工作过程中将依次送棋子到位。输送过程采用14个机械手同时工作。红绿两种棋子同时抓取、分拣,进盒。通过设备调试,让十四个机械手同时进行分拣工作,大大提高了分拣棋子的速度。由于每种棋子的数量并不相同,所以要调配每个传送带,机械手,传送平台,转台机构的工作效率来完成整个分拣过程。整机的工作过程由可编程控制器控制自动完成,HMI显示工作进度。

找人才
千校人才小程序
找工作
万企岗位小程序
一键咨询
注册简历
查询
资料下载
返回顶部