微信公众号
手机网站
就业/招聘小程序
咨询电话: 010-66083178(工作日8:30-17:30) 请登录 注册
联系我们
联系人:王秀秀
010 -66083178
www.qxwq.org.cn 
北京市西城区广安门
内广义街5号广益大厦
大赛作品详情

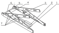
作品名称:自平衡运输车
学校名称:青岛黄海学院
参赛队伍:321
参赛学生:韩建桥 李禹萱 王振宇  
指导老师:邵瑞影 李鹏  

详细说明

自平衡调节平台的运输车,它完全可以作为人类搬运的替代工具,能够在狭窄的楼梯、室内外复杂的环境下完成对家电、药品、生鲜类和易碎类物品运输,这样能够在运输的过程中,保证货物的安全性,不会造成需多损失,节省了大量的劳动力。在机器人这个科技领域中发展最快最为流行的就是服务机器人,服务机器人的出现解决了人们生活的需要劳动力的场所,服务机器人的产生大大减少了劳动力,提高了工作效率。所以,现在研究出的运输车能够适应多种复杂地形和运输多种货物并具有的智能化程度高将会是未来运输车发展的走向。

针对无电梯楼层间、室内外中短距离的场所及复杂地形的家电、药品、生鲜类和易碎类物品运输的问题设计出了自平衡运输车。该运输车主要由主控系统、载货平台升降机构、夹持货物机构、行走机构、检测模块等组成。设计采用STM32F103作为主控核心,通过陀螺仪传感器读取角度,单片机接收到角度后通过PID计算将数值赋值给推杆电机,由推杆电机推动载货平台,使载货平台始终保持与地面平行。云台下方装有推杆电机,推杆电机具有自锁功能,云台装有压力传感器,当有压力产生就够自动锁紧货物。GPS定位装置、图像传输功能以及光电开关,可以自主行走并躲避障碍以及准确定位。行走机构采用履带式底盘,采用直流减速电机驱动;反应灵敏,耗能较低,电机采用差速方式转向,在楼梯等复杂地形转向更加灵活迅速。该设计有效解决了多地形搬运物品的问题,有效的提高了搬运的效率、货物的安全以及大大节省了人力。

找人才
千校人才小程序
找工作
万企岗位小程序
一键咨询
注册简历
查询
资料下载
返回顶部