微信公众号
手机网站
就业/招聘小程序
咨询电话: 010-66083178(工作日8:30-17:00) 请登录 注册
联系我们
联系人:王秀秀
010 -66083178
www.qxwq.org.cn 
北京市西城区广安门
内广义街5号广益大厦
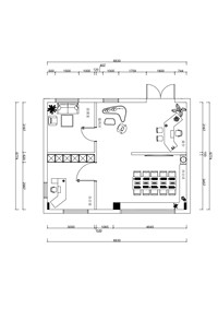
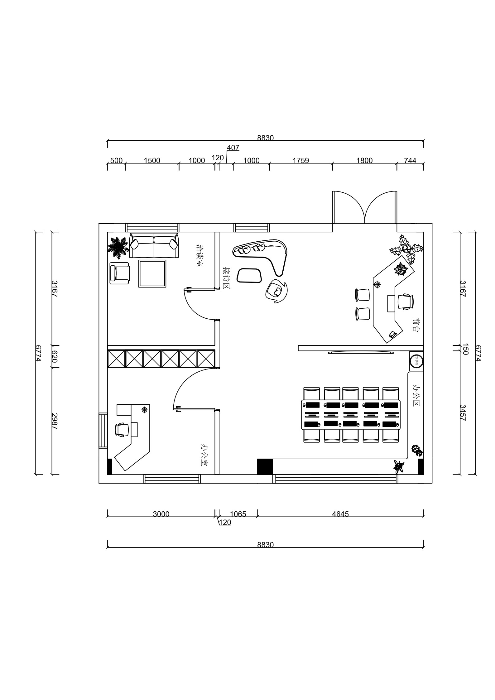
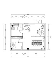
大赛作品详情

作品名称:智创办公
学校名称:广东花城工商高级技工学校
参赛队伍:万象天工
队伍编号:212380
参赛学生:林逸楠  
指导老师:谭淑华  
投票日期:2025年10月10日 00:00->2025年12月15日 00:00
请在微信端进行投票。点此扫描二维码。

详细说明

本作品紧扣“数字艺术与商业应用结合”的“智慧生活”主题,通过“精确CAD制图+沉浸式效果图呈现”的多元形式,对办公室设计全流程进行创意解析。设计以矩形轮廓为基础,凭借一系列CAD制图命令,通过偏移与直线分割定义空间结构与功能分区,清晰展示地面网格、储物柜位置,并将办公桌椅安置于合理区域;同时搭配效果图呈现,整体布局既体现严谨、高效与实用的设计理念,又通过数字艺术形式赋能商业办公场景,为“智慧生活”下的办公空间设计提供技术与视觉的双重价值

扫码申请
职业领航师
千校选才官
找人才
千校人才小程序
找工作
万企岗位小程序
一键咨询
注册简历
查询
资料下载
返回顶部